Gudang Informasi

Bathroom Design Dimensions / How to Measure Your Bathroom Before You Remodel - Luxury ... / Ft., large bathrooms offer copious amounts of space.

Bathroom Design Dimensions / How to Measure Your Bathroom Before You Remodel - Luxury ... / Ft., large bathrooms offer copious amounts of space.
Bathroom Design Dimensions / How to Measure Your Bathroom Before You Remodel - Luxury ... / Ft., large bathrooms offer copious amounts of space.

Bathroom Design Dimensions / How to Measure Your Bathroom Before You Remodel - Luxury ... / Ft., large bathrooms offer copious amounts of space.. Have your bathroom design sent. Measure the existing room plan for new framing; If you want a full bathroom layout, you're probably going to need at least 36 to 40 square feet. Check the size of your small bathroom to get an idea of your dimensions. Door, windows and water and waste points (if it's absolutely not within your budget to change them).do take a good look at the design possibilities that can materialize with clever placement of your bathroom doors and especially, pocket doors.

Once you have decided on the basic layout and have a general idea of how the drain and vents will run, make specific bathroom plans. It's quirky, and feels a little like a maze. 11'0 w x 9' 06 l. See more ideas about small bathroom layout, bathroom dimensions, bathroom layout. Measure the existing room plan for new framing;

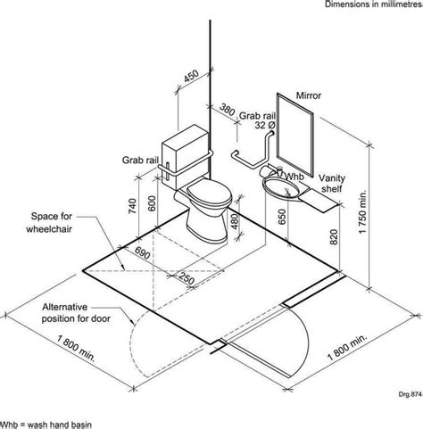
41 Ada Compliant Bathroom Dimensions Cb2w di 2020
41 Ada Compliant Bathroom Dimensions Cb2w di 2020 from i.pinimg.com
Try to think of your bathroom as having wet and dry zones. Common codes for bathroom design in the interest of providing some more rules of thumb, here are some common codes and typical dimensions to consider: For this size, you can choose two standard options. There is a linen closet, separated from the main bathroom by a door. This is a really interesting bathroom design. Use our predefined standard room shapes to create a clear floor plan with the dimensions of your bathroom. Take into account the thickness of the wall finishing material—usually 1/2 inch for drywall and perhaps another 3/8 inch for wall tiles. A 5' x 8' is the most common dimensions of a guest bathroom or a master bathroom in a small house.

Most often, full bathrooms are located off of bedrooms in more private areas of the home.

For this size, you can choose two standard options. Minimum dimensions and typical layouts for small bathrooms. At 110 to 210 sq. See more ideas about small bathroom layout, bathroom dimensions, bathroom layout. Standard tubs with apron fronts are 60 inches (152 centimeters) long and 30 to 32 inches (76 to 81 centimeters) wide. Common codes for bathroom design in the interest of providing some more rules of thumb, here are some common codes and typical dimensions to consider: Moving up to 48 inches (122 centimeters) in width per person provides ample space in more luxurious settings. To be categorized as a full bathroom, a bathroom must be outfitted with a toilet, a sink, a bathtub (usually an alcove tub), and a shower (or a combination of. If you want a full bathroom layout, you're probably going to need at least 36 to 40 square feet. Uncommon design elements not typically found in smaller bathrooms are found in larger bathrooms, such as custom bookcases and shelving, large bay windows, and wide expanses of marble or granite flooring. The layout provides room for the door to swing open. Medium sizes are around 50 square feet with large sizes landing around 60 square feet and beyond. The national kitchen & bath association developed these bathroom planning guidelines to provide designers with good planning practices that consider typical needs of users.

Door, windows and water and waste points (if it's absolutely not within your budget to change them).do take a good look at the design possibilities that can materialize with clever placement of your bathroom doors and especially, pocket doors. If you want a full bathroom layout, you're probably going to need at least 36 to 40 square feet. Minimum dimensions and typical layouts for small bathrooms. When autocomplete results are available use up and down arrows to review and enter to select. Take into account the thickness of the wall finishing material—usually 1/2 inch for drywall and perhaps another 3/8 inch for wall tiles.

Common Bathroom Floor Plans: Rules of Thumb for Layout ...
Common Bathroom Floor Plans: Rules of Thumb for Layout ... from www.boardandvellum.com
If we extend the dimensions slightly to 5ft x 9ft then there's room to alter the layout slightly to provide slightly more room in the shower part of the bathroom. A full bathroom requires a minimum of 36 to 40 square feet of space. The careful arrangement prevents the toilet from facing the doorway. Planner5d is a perfect planning system. This bathroom planner consists of modern electronic items that significantly ease the process of design. Try to think of your bathroom as having wet and dry zones. The minimum space per person is 24 inches (61 centimeters) wide, while 30 to 36 inches (76 to 92 centimeters) per person are more common and comfortable dimensions. This is explained by the fact that this planner allows you to create a bathroom both in 2d and 3d formats.

Bathroom planning guidelines for single lavatory placement the distance from the centerline of the lavatory to a sidewall/tall obstacle should be at least 20 inches.

To be categorized as a full bathroom, a bathroom must be outfitted with a toilet, a sink, a bathtub (usually an alcove tub), and a shower (or a combination of. This is what distinguishes us from other design and room planners on the market. Where to start with your bathroom floor plans: If you want a full bathroom layout, you're probably going to need at least 36 to 40 square feet. This bathroom planner consists of modern electronic items that significantly ease the process of design. A half bath will only have a sink and a toilet. A 5' x 8' is the most common dimensions of a guest bathroom or a master bathroom in a small house. There is a linen closet, separated from the main bathroom by a door. Standard tubs with apron fronts are 60 inches (152 centimeters) long and 30 to 32 inches (76 to 81 centimeters) wide. Planner5d is a perfect planning system. Common codes for bathroom design in the interest of providing some more rules of thumb, here are some common codes and typical dimensions to consider: Once you have decided on the basic layout and have a general idea of how the drain and vents will run, make specific bathroom plans. A full bathroom requires a minimum of 36 to 40 square feet of space.

Uncommon design elements not typically found in smaller bathrooms are found in larger bathrooms, such as custom bookcases and shelving, large bay windows, and wide expanses of marble or granite flooring. Bathroom planning guidelines for single lavatory placement the distance from the centerline of the lavatory to a sidewall/tall obstacle should be at least 20 inches. Another design that makes use of tight space, this layout opens directly into the main bathroom area with a sink and the toilet. Ft., large bathrooms offer copious amounts of space. The depth of a vanity is usually 21 to 22 inches (53 to 56 centimeters).

Bathroom design | Bathroom dimensions, Updating house ...
Bathroom design | Bathroom dimensions, Updating house ... from i.pinimg.com
Shower sized at 36 inches by 36 inches visually balances out the vanity. To be categorized as a full bathroom, a bathroom must be outfitted with a toilet, a sink, a bathtub (usually an alcove tub), and a shower (or a combination of. Here's some more things that you should take into consideration when designing your bathroom layout. The depth can be as little as 14 inches (35 centimeters) and as much as 20 inches (50 centimeters). Check the size of your small bathroom to get an idea of your dimensions. Measure the existing room plan for new framing; Take into account the thickness of the wall finishing material—usually 1/2 inch for drywall and perhaps another 3/8 inch for wall tiles. This is a really interesting bathroom design.

When autocomplete results are available use up and down arrows to review and enter to select.

Uncommon design elements not typically found in smaller bathrooms are found in larger bathrooms, such as custom bookcases and shelving, large bay windows, and wide expanses of marble or granite flooring. A full bathroom layout will contain four parts which are a sink, toilet, tub and shower. Where to start with your bathroom floor plans: Try to think of your bathroom as having wet and dry zones. Bathroom planning guidelines for single lavatory placement the distance from the centerline of the lavatory to a sidewall/tall obstacle should be at least 20 inches. The careful arrangement prevents the toilet from facing the doorway. There is a linen closet, separated from the main bathroom by a door. This is explained by the fact that this planner allows you to create a bathroom both in 2d and 3d formats. This is what distinguishes us from other design and room planners on the market. A full bathroom usually requires a minimum of 36 to 40 square feet. Shower sized at 36 inches by 36 inches visually balances out the vanity. The national kitchen & bath association developed these bathroom planning guidelines to provide designers with good planning practices that consider typical needs of users. It's quirky, and feels a little like a maze.

Advertisement